Les actualités
Nouvelle recherche Cette annonce m'intéresse

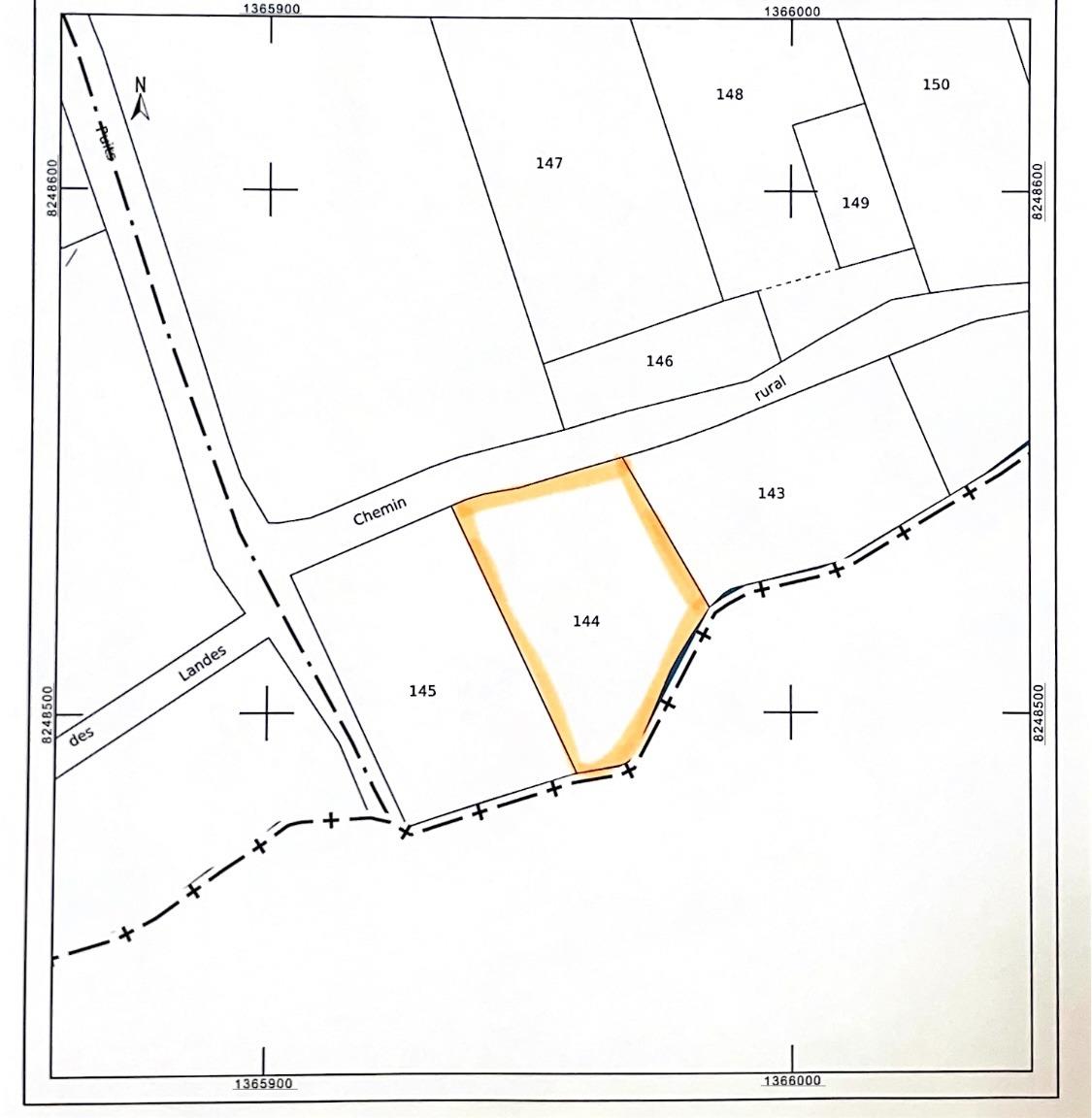
PARCELLE DE TERRE

Prix : 6 600,00 
Dont honoraires 10,00 % TTC inclus à la charge de l'acquéreur, soit 6 000 € hors honoraires.
Type de bien : Terrain agricole
Pièces : 1 pièce
Terrain : 1 685,00m²
Localité : NEUVILLE-EN-BEAUMONT (50250) FRANCE
Référence : 50061-965420

Description du bien

A Neuville en Beaumont, une parcelle de terre plantée de 49 peupliers d'une contenance cadastrale d'environ 1685m².

N'hésitez pas à contacter Christine Duteurtre, Négociatrice à l'office notarial de Saint-Sauveur-le-Vicomte au 02.33.21.72.72 pour tout renseignement complémentaire. 

Caractéristiques

Terrain agricole : oui

Mandat

Nom du mandataire : DUTEURTRE Christine
Téléphone mandataire : 02 33 21 72 72
E-mail mandataire : Veuillez utiliser le formulaire de contact ci-dessous ...
Négociateur : DUTEURTRE Christine

Cette annonce m'intéresse

Captcha
* Les champs suivis d'un astérisque sont obligatoires.

Conformément à la loi n°78-17 du 6 janvier 1978 modifiée relative à l'informatique, aux fichiers et aux libertés, et au règlement européen 2016/679, dit Règlement Général sur la Protection des Données (RGPD), vous disposez d'un droit d'accès, de rectification, de suppression des informations qui vous concernent.
Navigateur non pris en charge

Le navigateur Internet Explorer que vous utilisez actuellement ne permet pas d'afficher ce site web correctement.

Nous vous conseillons de télécharger et d'utiliser un navigateur plus récent et sûr tel que Google Chrome, Microsoft Edge, Mozilla Firefox, ou Safari (pour Mac) par exemple.
OK